LANDMARK FOR WORK
PVO75
// OFFICE BUILDING AS GATEWAY TO OVERIJSSEL
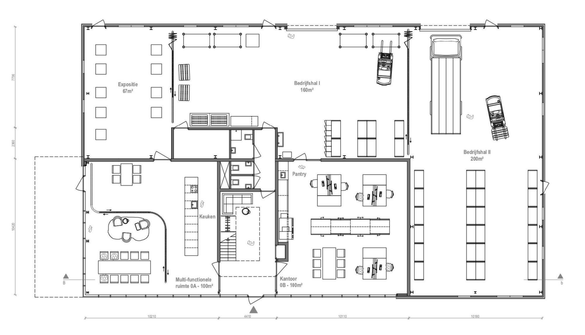
spelling en grammatica: Voor een Metadecor in Kampen ontwierp NVDTA een flexibel kantoorgebouw dat inspeelt op toekomstige uitbreidingsmogelijkheden. Gelegen langs de N50 bij de Eilandbrug fungeert het als markante poort tot Overijssel, geïnspireerd op een modern brugwachtershuisje. Het ontwerp bestaat uit gestapelde blokken met een centrale routing, wat een open plint creëert en de kantoorruimten uniform en verhuurbaar maakt. De strategische ligging nabij Zwolle, Amsterdam en de Hanzelijn versterkt de verhuurbaarheid, terwijl de robuuste en duurzame materialisatie zorgt voor een toekomstbestendig en kostenbewust gebouw.
